Charmante maison de ville.
Description
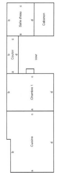
Votre agence Rose Castel Immobilier vous propose cette charmante maison de ville cosy, en bon état, mitoyenne d’un coté, dans le cœur de ville et très lumineuse.
Venez découvrir la belle pièce de vie avec son espace cuisine ouverte et son espace salon. A la suite, vous apprécierez le coin nuit ouvert donnant accès à la salle d’eau spacieuse avec WC et espace lave-linge ( Possibilité de créer une chambre fermée).
Pour les beaux jours, une cour intérieure intimiste vous attend avec une dépendance.
Avantages:
– vie de plain-pied
– dans le cœur de ville
– chaudière gaz de 2023 en garantie
– grenier à potentiel d’aménagement
– double vitrage
– VMC
– Fibre
– idéal pour un projet locatif
– pas de copropriété
Contactez-nous au 0237204725 pour plus d’informations.
Classe GES
Energie
Détails
-
Référence:252
-
Lot Area (m²):33.59 m²
-
Pièces:1
-
Prix:75.000 €
-
Status:

















