Appartement – Parvis de la Gare
820 €CC
Description
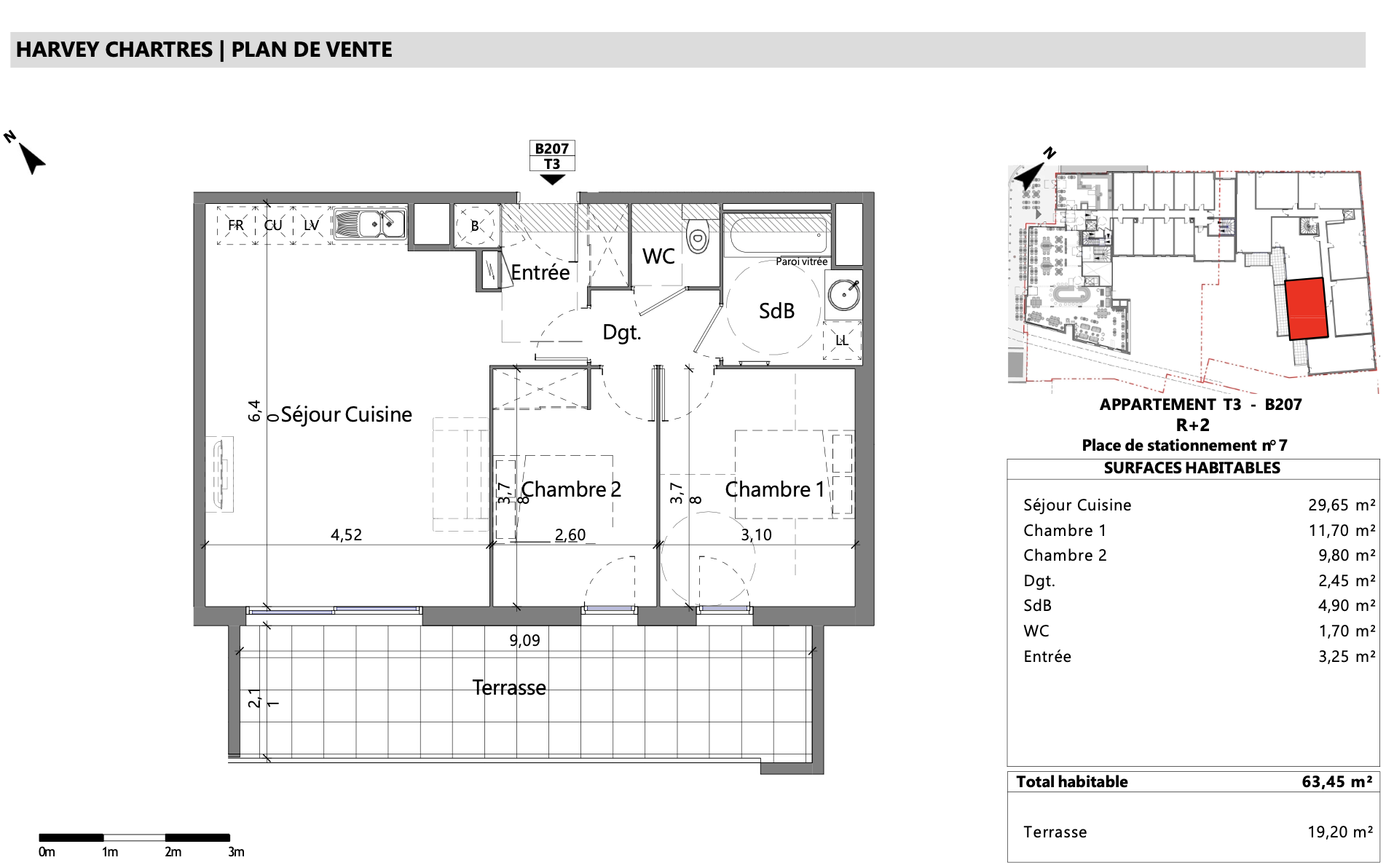
Vous êtes à la recherche d’un logement près de la Gare de Chartres ? L’appartement B207 de la résidence Harvey est fait pour vous !
Idéalement situé à quelques pas du parvis de la gare, cet appartement de standing vous garantit tout le confort d’une vie citadine.
Neuf et livré en 2025, il se compose d’un salon-séjour avec cuisine, de 2 chambres, d’une salle de bains et d’un WC indépendant.
Pour profiter des beaux jours, cet appartement possède une superbe terrasse de 19 m2.
Pour un confort optimal, une place de stationnement en sous-sol est également incluse.
Séduit par son emplacement et ses prestations ?
Contactez-nous dès maintenant !
- Loyer : 750 €
- Charges : 70 €
- Dépôt de garantie : 750 €
- Honoraires d’agence : 697,95 € dont 190,35 € pour la réalisation de l’état des lieux
Détails
-
Référence:224
-
Lot Area (m²):63,45 m²
-
Pièces:3
-
Chambres:2
-
Prix:820 €CC
-
Construction:2025
-
Status:
Equipements
- Ascenseur
- Chauffage
- Cuisine équipée
- Double vitrage
- Stationnement








